一、项目概况:
1、招标人全称:中国科学院上海营养与健康研究所
2、项目名称:数字健康部装修改造项目
3、项目地点:上海市徐汇区漕宝路500号7号楼5层东侧
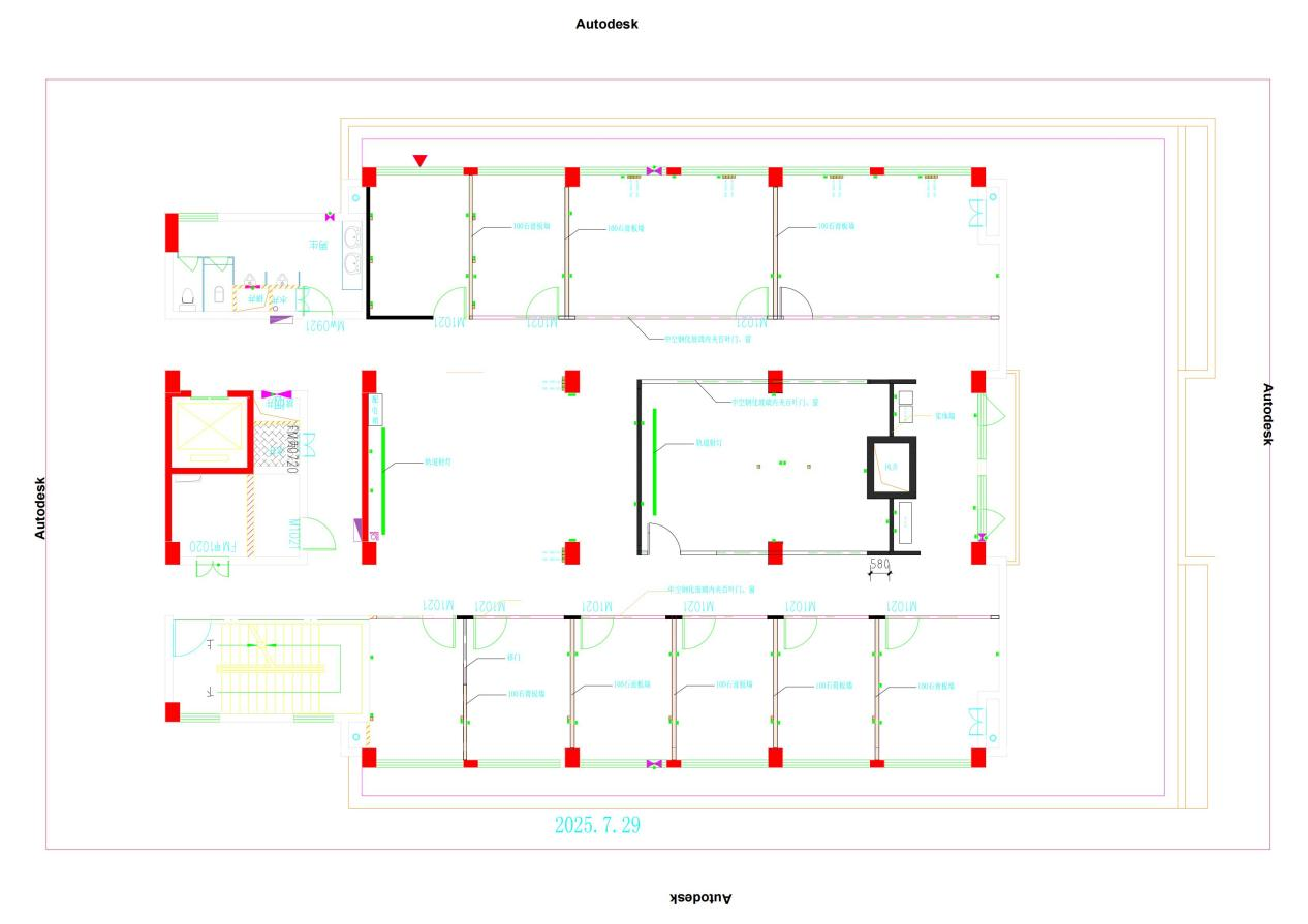
4、项目主要内容如下:本次装修改造区域建筑面积约300㎡;主要包括办公、学习、会议等;建议参选单位仔细现场踏勘。
5、项目要求:
拆除原有细胞房和小型实验室,相应吊顶和地板修复,垃圾外运等;东西侧墙体采用中空玻璃夹百叶、南北侧墙体采用轻钢龙骨双面石膏板;消防系统按照国家有关规定位移、增补;强电(含照明、插座、电路及配电箱)、弱电(网络、电话)按照使用单位提供的说明和需求安装;原墙、窗、门、踢脚线等进行修补;部分空调位移和新增。
6、项目工期要求:中标单位在签署协议后30天内完成施工。
二、投标人资质要求(资格预审):
1、具有独立的法人资格;投标人没有处于被责令停业,投标资格被取消,财产被接管、冻结,破产等状态,且在最近五年内没有骗取中标和严重违约及重大问题。
2、具备装修施工专业承包三级或以上(有效期内)。
3、项目负责人:具备注册建造师资格证(注册二级建造师或注册一级建造师)、主持过至少1项同类项目的施工管理工作。
4、企业3年内具有同类工程项目的施工业绩。
5、投标人应按照要求合理配置专业管理人员,进行施工现场的管理工作,同时应根据项目建设工作需要随时到场。
三、公告时间:
2025年7月30日
四、投标截止时间:
2025年8月5日下午17:00
五、开标时间及地点:
1、开标时间:2025年8月6日(暂定)
2、开标地点:上海市岳阳路320号
六、开标时投标人须携带资料:
1、投标单位介绍信或法人授权委托书
2、装修施工专业承包三级或以上(有效期内)
3、营业执照
4、建筑业企业资质证书
5、项目负责人:具有注册建造师资格证(注册二级建造师或注册一级建造师)主持过至少1项同类项目的施工管理工作
6、企业近3年内具有同类工程项目的招标业绩
7、针对本工程的施工组织设计需主要包含以下几部分:
a、对本工程进度及质量要求的响应情况及保证措施;
b、针对本工程的施工方案;
c、针对本工程安全、文明施工的技术措施;
d、施工总进度计划表;
e、针对本工程主要施工机械选用表、主要劳动力使用计划表;
f、施工现场平面布置图;
以上资料均装订成册并加盖公章的复印件5份。
七、项目控制价25.86万元(包含审价、垃圾清运等所有费用)
八、联系方式:
单 位:中国科学院上海营养与健康研究所
地 址:上海市徐汇区漕宝路500号
联系人:周晶王璐
电 话:021-54971055
邮箱:jwlzhou@sinh.ac.cn
附平面图
